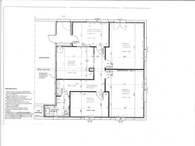
Dans un récent parc d'activités, au rez-de-chaussée d'un immeuble récent, local à usage de bureaux d'une superficie de 91,93 m2, comprenant : accueil, 3 bureaux, salle de réunion, dégagement, sanitaires, climatisation dans salle de réunion, convecteurs, belles finitions. Bail professionnel 6 ans.
Loyer par mois charges comprises : 1878,00 EUR (non soumis à la TVA) Dont 30,00 EUR de provision pour charges (charges locatives + eau) - régularisation annuelle Taxe foncière charge locataire : 938,00 EUR Dépôt de garantie : 3696,00 EUR
Facebook Connect Third Party Cookie. This cookie is used to collect information about browsing and to connect via Facebook
Google Analytics Audience measurement cookie. This cookie allows us to establish site visit statistics
BETB_ID, PHPSESSID Mandatory cookies. These cookies are necessary to enable the proper functioning of the site, they are automatically activated when you use this site